Die Meldung in Bildern
Respekt vor dem Klinker
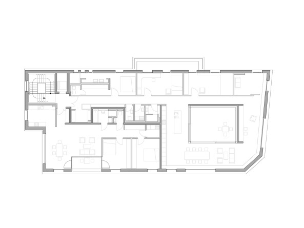
Dachaufstockung in Leipzig von Knoche Architekten
Bild 7/13
Bild: Knoche Architekten