Die Meldung in Bildern
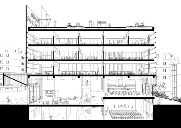
Stadtteilzentrum am Stadtrand
Common Agency entwerfen in Hamburg
Bild 13/14
Perspektivschnitt
Bild: Common Agency