Die Meldung in Bildern
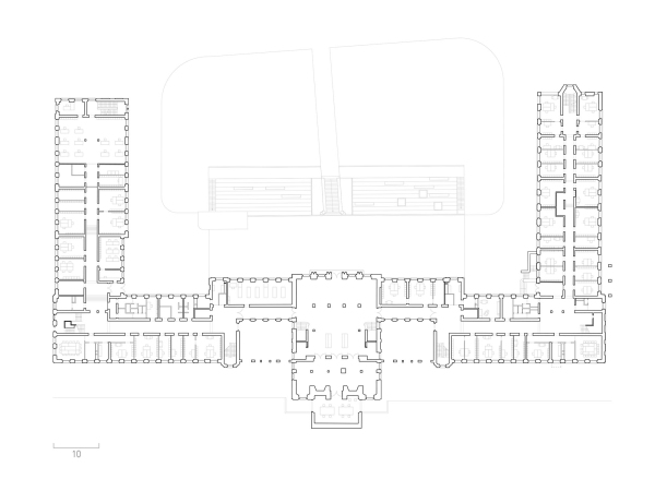
Sanierung für den Fritz-Foerster-Bau
Code Unique in Dresden
Bild 29/32
Erdgeschoss
Bild: Code Unique