Die Meldung in Bildern
Sich selbst recyceln
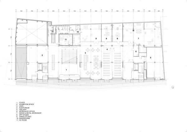
Co-Working in Kopenhagen von pihlmann architects
Bild 44/53
Erdgeschoss
Bild: philman architects