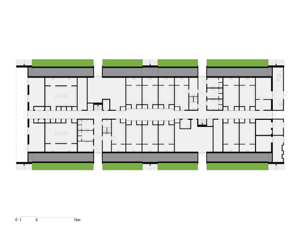
Grundriss Erdgeschoss: Umkleiden, Duschen, Stau- und Technikräume.

Bild 29/57

Grundriss Erdgeschoss: Umkleiden, Duschen, Stau- und Technikräume.

Bild: NL architects