Christ + Gantenbein gewinnen Wettbewerb in Bern
Bild 15/23
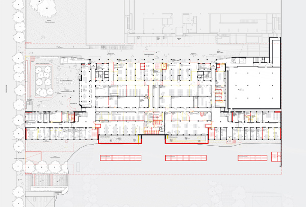
1. Untergeschoss
Bild: Christ & Gantenbein