Die Meldung in Bildern
Französisch-chinesischer Kulturaustausch
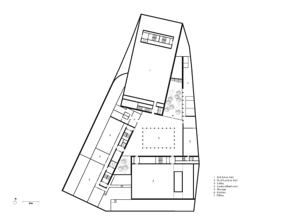
Chipperfield Architects planen Museum in Shanghai
Bild 8/18
Bild: David Chipperfield Architects