Die Meldung in Bildern
Im Nieselregen von Kingston
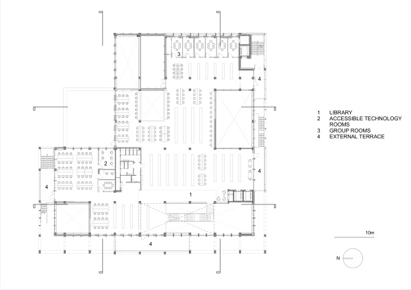
Campusgebäude von Grafton in London
Bild 21/28
Grundriss 3.OG
Bild: Grafton Architects