Die Meldung in Bildern
Firmenzentrale wechsle dich
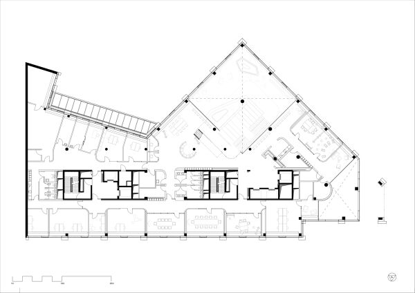
C.F. Møller Architects in Berlin
Bild 35/43
Grundriss 1. Obergeschoss
Bild: C.F. Møller