Die Meldung in Bildern
175 Meter hohe Kugelbahn
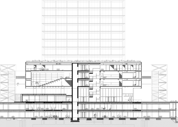
Büroturm in Turin von Studio Fuksas
Bild 17/19
Schnitt durch Service-Center
Bild: Studio Fuksas