Die Meldung in Bildern
Schöner Arbeiten in der Hansestadt
Bürogebäude von Gewers Pudewill
Bild 16/18
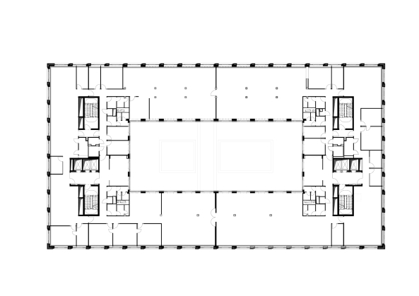
Regelgeschoss