Bürogebäude von Fletcher Priest in London
Bild 27/32
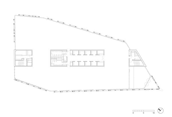
Grundriss 1. Obergeschoss
Bild: Fletcher Priest Architects