C.F. Møller Architects, Bürogebäude, Neubau, Verwaltung, Superblock, Hochhaus, Türme, corporate headquarters, HQ, Aarhus, C.F. Møller Landscape, COWI, Vero Moda, Jack & Jones, Bestseller, fashion group, 400 bicycles, Fahrradtiefgarage, Fahrrad, Büro, Grundriss, Modekonzern, Konzern, car park, Naturstein, Fassade, stone, 2015, indoor plaza, nachhaltig, energetisch, saving, enery, Denmark, danisk, Dänemark

Bild 35/42

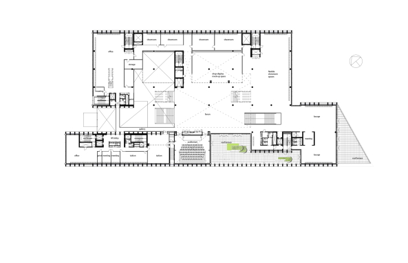
Grundriss 1. Obergeschoss

Bild: C.F. Moeller