Die Meldung in Bildern
Arbeiten im Parc de la Villette
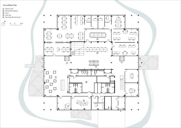
Bürogebäude von Atelier du Pont in Paris
Bild 14/22
Erdgeschoss
Bild: Atelier du Pont