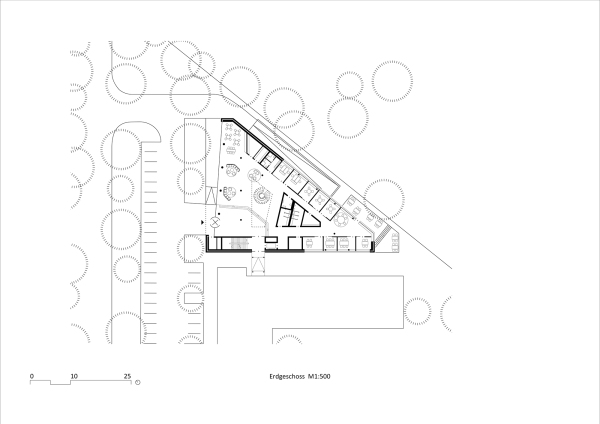
Bürogebäude in Stuttgart von Drei Architekten
Bild 31/35
Grundriss Erdgeschoss
Bild: Drei Architekten