Die Meldung in Bildern
Holz und Lehm in Stein
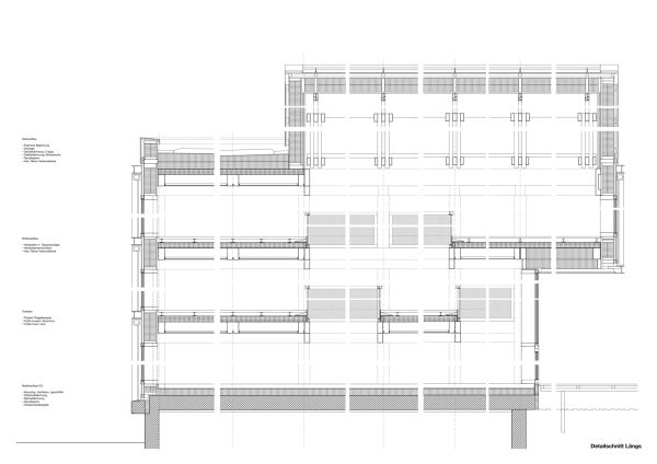
Bürogebäude in Aargau von Burkard Meyer Architekten
Bild 22/25
Schnitt
Bild: Burkhard Meyer