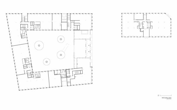
Büroensemble von Tchoban Voss Architekten in Berlin
Bild 43/50
Grundriss Erdgeschoss
Bild: TCHOBAN VOSS Architekten