Die Meldung in Bildern
Schwarzer Rahmen um die Villa
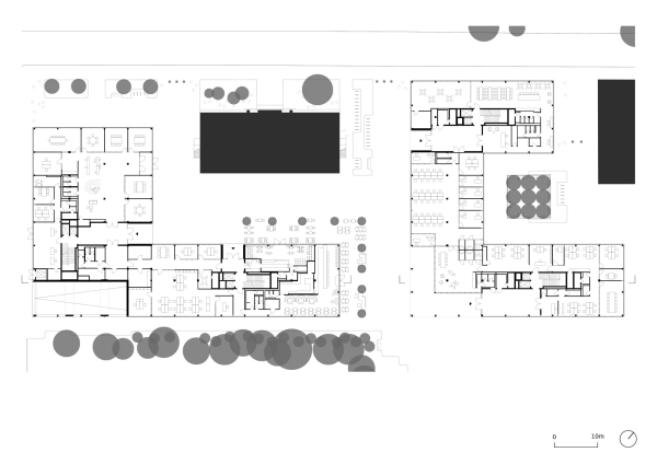
Büroensemble in München von HENN
Bild 16/18
Grundriss Erdgeschoss
Bild: HENN