Die Meldung in Bildern
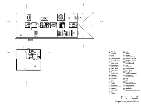
Roche in Grenzach
Bürobau von Christ und Gantenbein bei Basel
Bild 6/10