Die Meldung in Bildern
Terrassen im Hinterhof
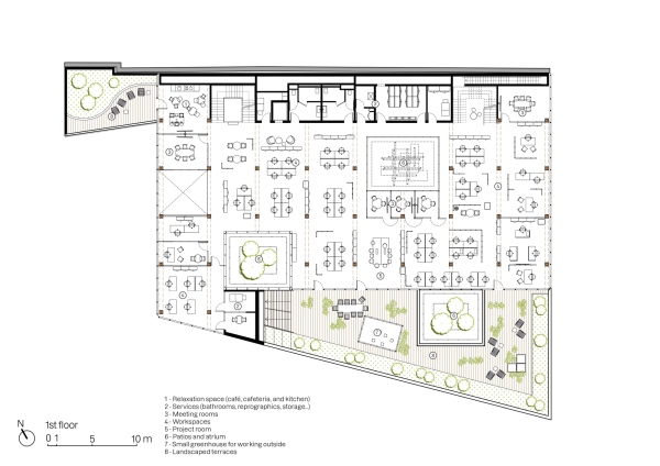
Bürobau von Atelier du Pont in Paris
Bild 16/22
Grundriss 1. Obergeschoss
Bild: Atelier du Pont