Die Meldung in Bildern
Terrassen im Hinterhof
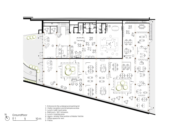
Bürobau von Atelier du Pont in Paris
Bild 15/22
Grundriss Erdgeschoss
Bild: Atelier du Pont