Die Meldung in Bildern
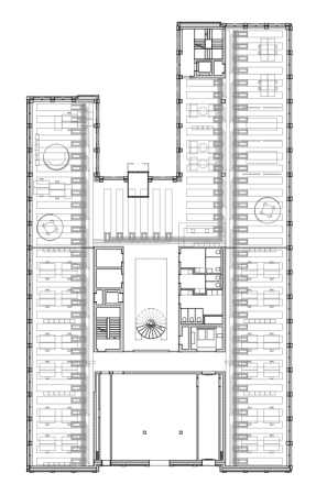
Feingliedrig abgetreppt
Bürobau in Zug von Boltshauser Architekten
Bild 5/9
Grundriss EG
Bild: Boltshauser Architekten