Die Meldung in Bildern
Realexperiment mit Lehmdecken
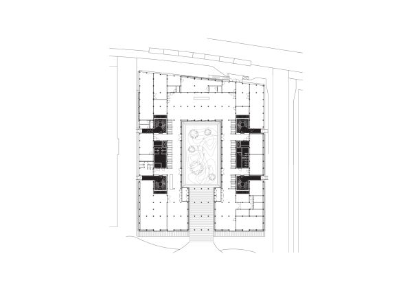
Bürobau in Basel von Herzog & de Meuron
Bild 36/43
Grundriss Erdgeschoss
Bild: Herzog & de Meuron