Die Meldung in Bildern
Rüstung mit Ausblick
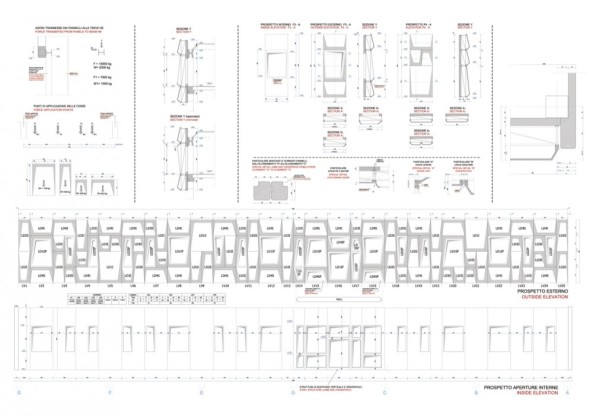
Büro- und Logistikzentrum in Süditalien
Bild 15/16
Bild: modostudio