Die Meldung in Bildern
Terrazzo und Geschichte
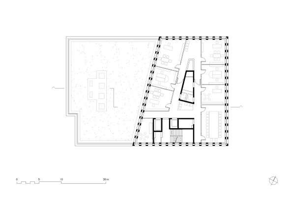
Bürgerhaus der Stadt Ulm von Bez + Kock
Bild 17/19
Grundriss 3. Obergeschoss