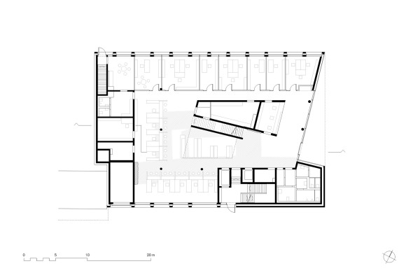
Bürgerhaus der Stadt Ulm von Bez + Kock
Bild 15/19
Grundriss Erdgeschoss
Bild: Bez + Kock Architekten