Ludwig Leo, Moderne, Umlauftank, Gregor Harbusch, Ausstellung, exhibition, London, Berlin, Stuttgart, Neuauflage, DLRG, Schiffe, Boote, VW-Bus, Architekten, Biografie, Nachkriegszeit, Wiederaufbau, Sporthalle, Charlottenburg, post war, Peter Cook, famous, berühmt, BAR Architekten, Antje Buchholz, Jack Burnett-Stuart, Michael von Matuschka, Jürgen Patzak- Poor, Architectural Association, Publication, Book, international exhibition

Bild 9/22

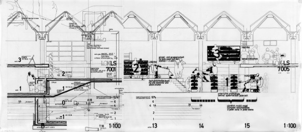
Entwurf Laborschule Bielefeld, 1971

Bild: Ludwig-Leo-Archiv in der Akademie der Künste, Berlin, Copyright: Morag Leo