Die Meldung in Bildern
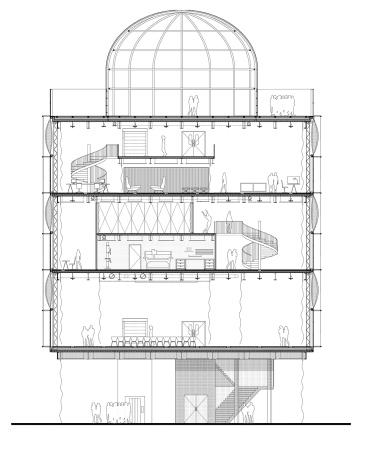
Forschung hinter Glas
Bruthers Entwürfe für Paris und Caen
Bild 6/9
Bild: Bruther