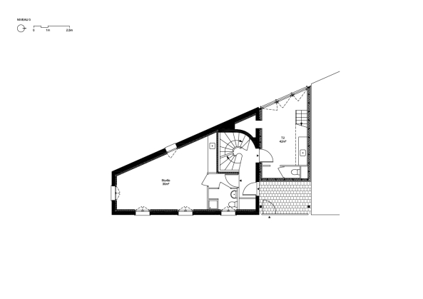
Atelier Ramdam, Saint-Denis, Maison Doisneau, Umbau, Wohnhaus, Erweiterung, Holz, Ziegel, housing, alteration, extension, wood, brick, BauNetz, uncube

Bild 14/18