Bild 27/43
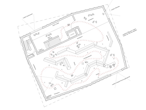
2. Preis nach Überarbeitung: Wandel Lorch Götze Wach Architekten (Frankfurt am Main). Grundriss 1. Obergeschoss
Bild: Wandel Lorch Götze Wach Architekten
Bild 27/43
2. Preis nach Überarbeitung: Wandel Lorch Götze Wach Architekten (Frankfurt am Main). Grundriss 1. Obergeschoss
Bild: Wandel Lorch Götze Wach Architekten