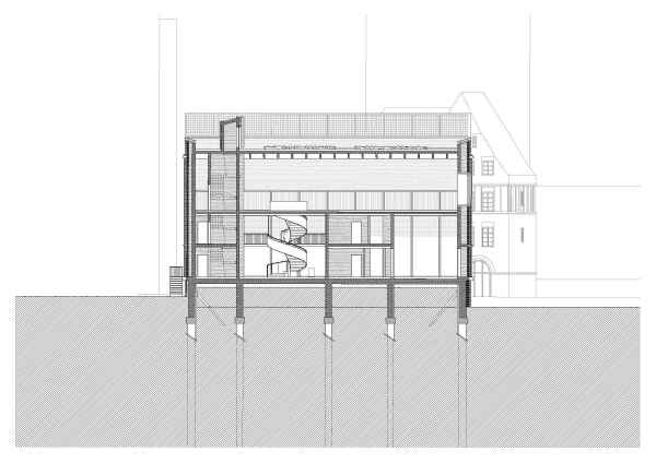
1. Preis nach Überarbeitung: Boltshauser Architekten (Zürich). Längsschnitt

Bild 16/43

1. Preis nach Überarbeitung: Boltshauser Architekten (Zürich). Längsschnitt

Bild: Boltshauser Architekten