Die Meldung in Bildern
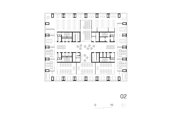
Von der Strafanstalt zum Life-Science-Campus
Biozentrum in Basel von Ilg Santer Architekten
Bild 18/25
Bild: Ilg Santer Architekten