Die Meldung in Bildern
Rotes Leuchten in Nordarmenien
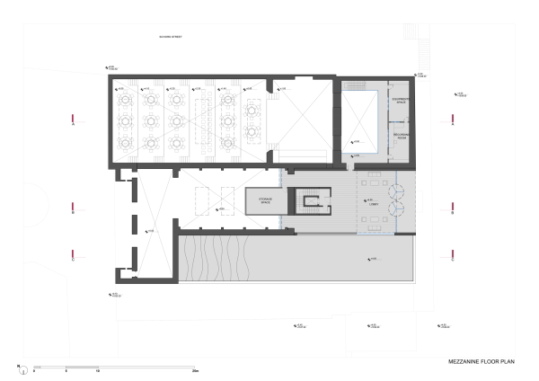
Bildungszentrum von Bernard Khoury/DW5
Bild 30/34
Grundriss 1. Obergeschoss
Bild: DW5 BERNARD KHOURY