Die Meldung in Bildern
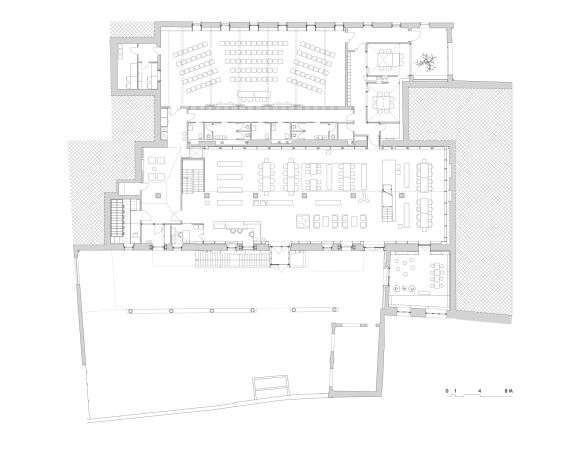
Kulturort mit vielen Türen
Bibliotheksumbau von DAP Studio in Mezzolombardo
Bild 19/29
Grundriss Erdgeschoss
Bild: DAP studio