2016 Bibliothèque Alexis de Tocqueville, Baunetz, Baunetz-Meldung, Architektur, Architekt, architect, architecture, Architekt gesucht, Meldungen, architecture-news, Architektur Deutschland, deutsche Architekten, german architecture, young architects, France, Frankreich, Caen, Communauté d’agglomération Caen La Mer, Clément Blanchet, Chris van Duijn, Fred Ernst OMA, Rotterdam,

Bild 29/35

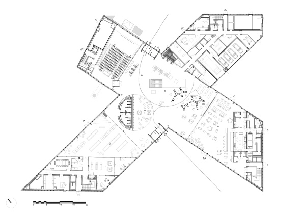
Grundriss Erdgeschoss

Bild: Copyright OMA