Die Meldung in Bildern
Finnisches Wohnzimmer
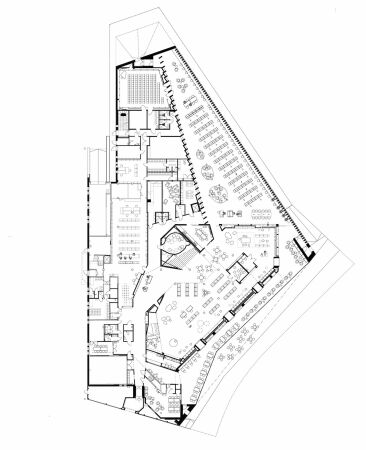
Bibliothek von JKMM Architects in Kirkkonummi
Bild 31/39
Grundriss Erdgeschoss
Bild: JKMM Architects