Die Meldung in Bildern
Zwei Nutzungen
Bibliothek in Zaragoza eingeweiht
Bild 11/15
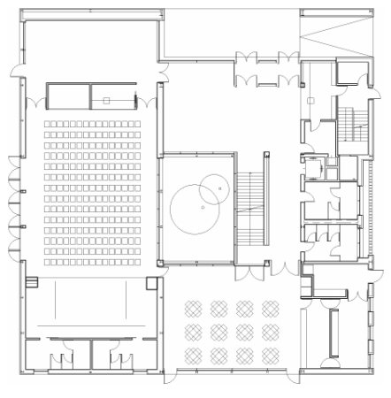
EG