Die Meldung in Bildern
Maritimer Fries in Honningsvåg
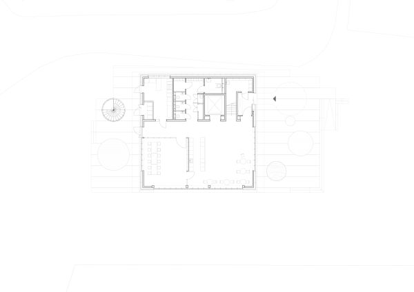
Besucherzentrum von Transborder Studio
Bild 13/18
Grundriss Erdgeschoss
Bild:
Transborder Studio