Alfred Kärcher GmbH & Co. KG, Neubau, Besucherzentrum, 2015, Winnenden, Firmen-Areal, Bauabschnitt, Auditorium, Brick, concrete, glass, Backstein, Reichel Schlaier Architekten, schäbisch, swabian, Baden-Württemberg, Industriebau, Seminarräume, Kundenzentrum, Hochruck, Reinigung, Stuttgart, Germany, Deutschland, Ziegeleistraße

Bild 14/16

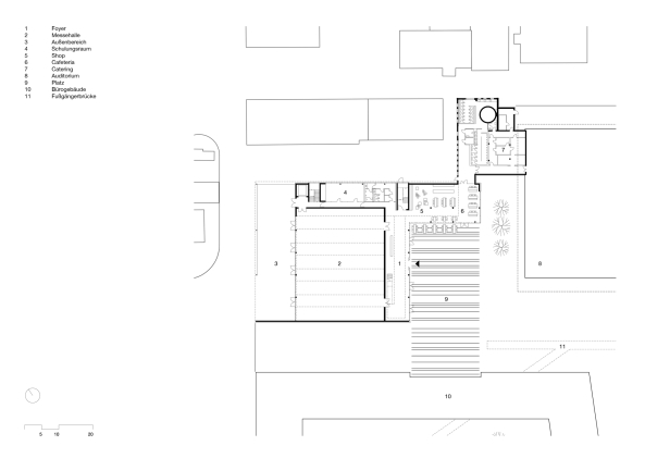
Grundriss Erdgeschoss

Bild: Reichel Schlaier Architekten