Die Meldung in Bildern
Baden im Luxus
Berliner bauen Schweizer Spa um
Bild 24/29
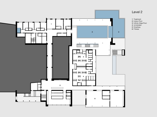
Grundriss Level 2
Bild: Dierks Sachs mit plus 4930