Wohnhaus in Berlin, Living in Berlin, Berlin-Mitte, Waisenstraße, Berliner Block, Wohnhäuser an der alten Stadtmauer, altes Berlin, old berlin, Maisonette, Townhouse, Sohrab Zafari, Atelier Zafari, Japan, Persien, Lücke, Grundstück, Neubau, Wohnungsbau, Brandwand, Junge Architekten, Wohnen mit Pool, Dachteressae, Licht, Luft, new buildings in berlin, walls, windows, german architecture, best architects, Putz, Wärmedämmung, density

Bild 24/30

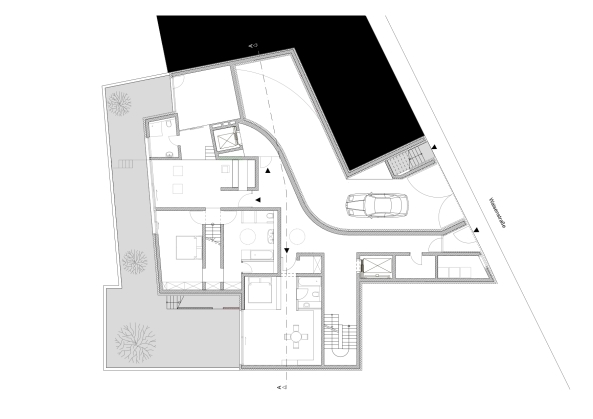
Erdgeschoss