Die Meldung in Bildern
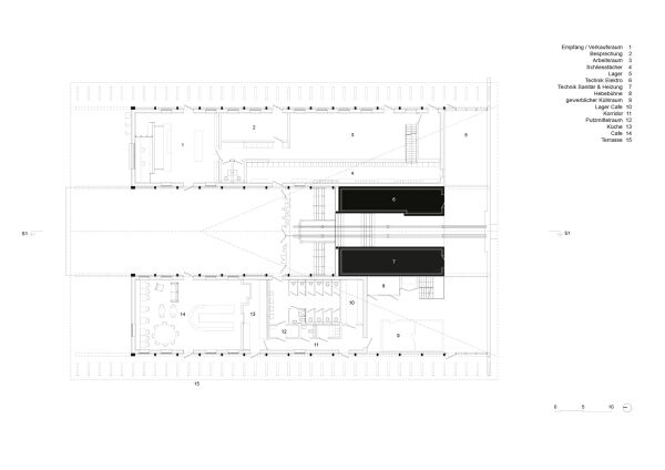
Talstation Unterwasser
Bergbahnhof von Herzog & de Meuron
Bild 8/10
Grundriss Erdgeschoss
Bild: Herzog & de Meuron