Behördenbau in Odense von C.F. Møller Architects
Bild 30/37
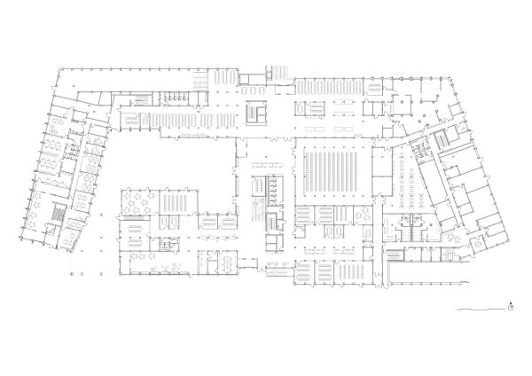
Grundriss Erdgeschoss
Bild: C.F. Møller Architects