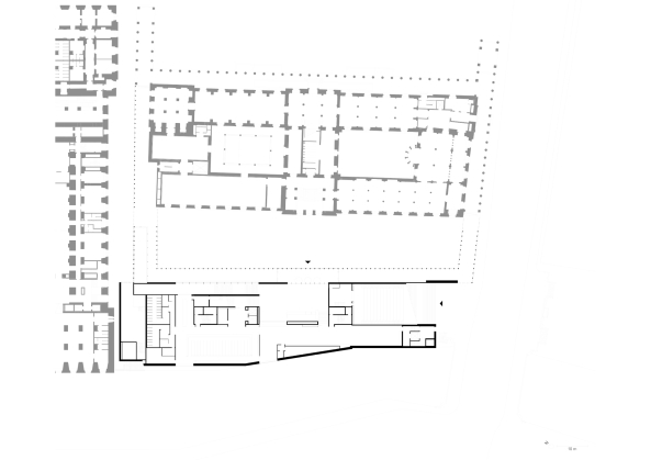
Grundriss Ebene 1 und Mezzanin (Originalmaßstab 1:500)

Bild 39/45

Grundriss Ebene 1 und Mezzanin (Originalmaßstab 1:500)

Bild: © David Chipperfield Architects