Baustellenbesuch bei ZRS Architekten Ingenieure in Berlin
Bild 21/29
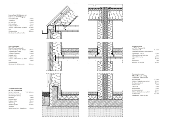
Detailschnitt
Bild: ZRS Architekten Ingenieure