Die Meldung in Bildern
Die Siedlung lebt
Baustellenbesuch bei ZRS Architekten Ingenieure in Berlin
Bild 18/29
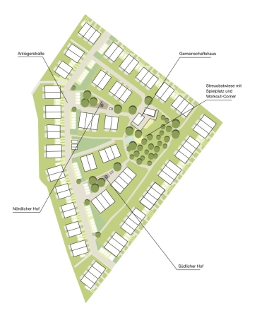
Lageplan
Bild: Ziegert GmbH