Die Meldung in Bildern
Das mehrdeutige Gesicht
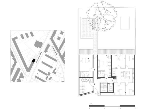
Baugruppenprojekt von roedig.schop in Berlin
Bild 11/15
Bild: roedig.schop architekten