Baugruppenhaus in Berlin von June14
Bild 20/22
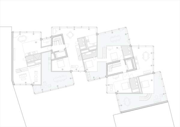
Grundriss 3. Obergeschoss
Bild: June14 Meyer-Grohbrügge & Chermayeff