Die Meldung in Bildern
33 x Wohnen
Baugruppenhäuser von LAN in Hamburg
Bild 32/36
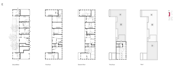
Grundrisse Typ E