Die Meldung in Bildern
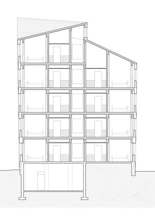
Wohnheim aus Massivholz und Ziegeln
Barkow Leibinger in Houston
Bild 24/25
Schnitt
Bild: Barkow Leibinger